usluge
T. L. A. projekt d.o.o. je obiteljska tvrtka osnovana 2022. godine, a osnovna djelatnost tvrtke je arhitektonsko projektiranje. Iako smo mlada tvrtka imamo veliko iskustvo rada u struci.
Svrha provođenja tehničkog savjetovanja investitora odnosno obavljanja djelatnosti upravljanja projektom gradnje jest da se prije i u tijeku izvođenja radova osigura realizacija koncepcije građevine. Kontaktirajte nas.
Idejni projekt u formi idejnog rješenja povezuje ideje i vizije investitora sa stvarnim svijetom, počinje definiranjem projektnog zadatka i izradom varijanti idejnog rješenja. Slijedeći korak je na investitoru, izbor varijante rješenja kojeg se dorađuje i na kraju odobrava, a nakon toga slijedi pokretanje postupka pribavljanja uvjeta. Idejni projekt
Glavni projekt predstavlja skup usklađenih projekata čija je svrha pružiti tehničko rješenje za gradnju građevine, dokazati ispunjenje temeljnih zahtjeva i zadovoljiti propisane uvjete. Ovisno o vrsti građevine, ovaj projekt obuhvaća arhitektonski, građevinski, elektrotehnički i strojarski projekt. Glavni projekt
U slučaju da je građevina sagrađena bez građevinske dozvole ili je izgrađena neusklađeno s odobrenjem, potreban je projekt legalizacije koji će opisati kako će se građevina prilagoditi važećim propisima i standardima. Projekt legalizacije objekta je dokumentacija koja sadrži sve potrebne informacije o objektu i opisuje način kako će se objekt prilagoditi važećim propisima i standardima.
Prvi korak je izlazak na teren i pregledavanje postojeće dokumentacije što je preduvjet za pokretanje postupka. Nakon toga snima se postojeće stanje, izrađuje elaborat te ishodi potvrda od nadležnog tijela graditeljstva nakon čega je moguće napraviti upis u Zemljišne knjige. Izradu posebnih dijelova zgrade radimo samostalno.
3D vizualizacija igra ključnu ulogu u prezentaciji građevinskih projekata, pružajući realističan uvid u planirane objekte. Vizualizacije radimo samostalno.
ARHITEKTONSKI PROJEKT
Arhitektura je dizajn i planiranje izgleda i strukture građevina. To uključuje idejno rješenje i izradu glavnih projekata, kao i odabir materijala i tehnologija koje će se koristiti u gradnji.
U procesu se također bavimo pitanjima korisničkog iskustva i funkcionalnosti građevina, kao i njihovim okruženjem i utjecajem na okolinu. Projektiramo objekte svih vrsta, veličina i namjena; obiteljske kuće, višestambene zgrade, te turističke i poslovne građevine.
Pored novogradnji radimo i legalizacije, rekonstrukcije, prenamjene i dogradnje postojećih objekata, te ishođenje uvjeta, dozvola i revizija. Naš fokus je Istarska županija, a sjedište nam je u Puli.



PROJEKT GRAĐEVINSKE KONSTRUKCIJE
Projektiranje građevinske konstrukcije (‘statike’) zgrade je proces određivanja konstrukcije zgrade tako da je sigurna i stabilna, te da može podnijeti opterećenja koja će se na nju nametnuti tijekom vremena.

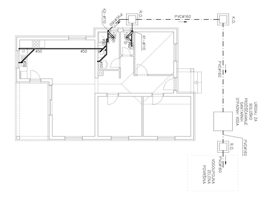
PROJEKT VODOVODA I KANALIZACIJE
Projekt vodovoda i kanalizacije zgrade je dokument koji sadrži sve potrebne informacije o tome kako će se vodovod i kanalizacija izgraditi u zgradi.

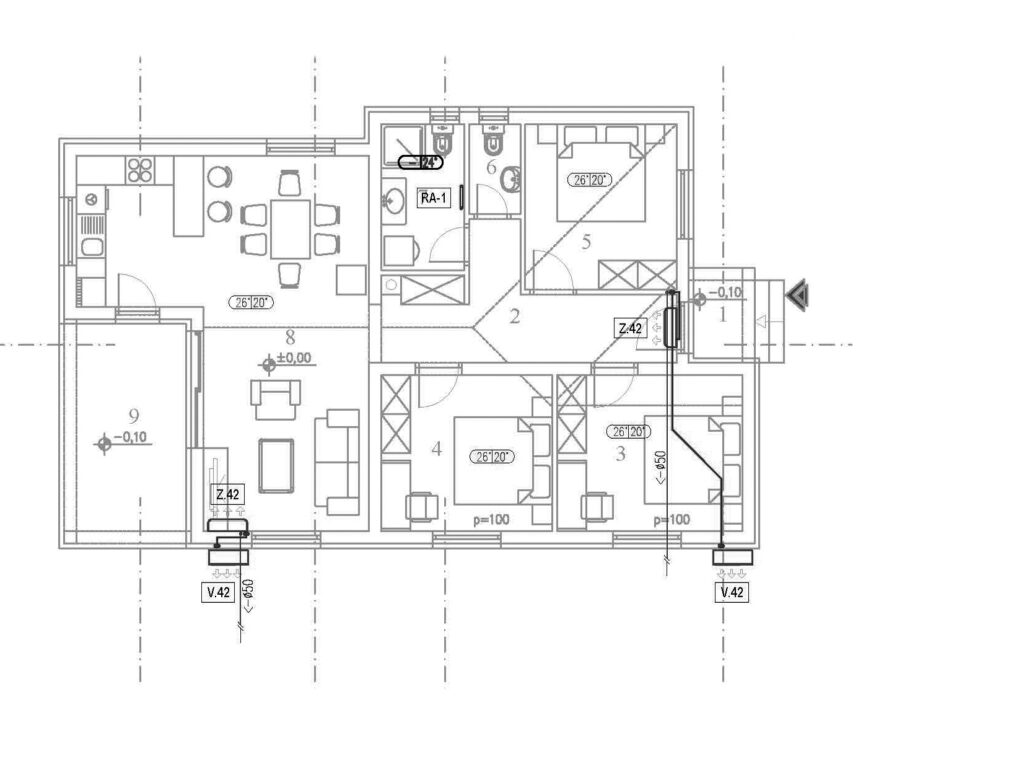
PROJEKT GRIJANJA I HLAĐENJA
Projekt grijanja i hlađenja je dokument koji sadrži sve potrebne informacije o tome kako će se građevina grijati i hladiti.

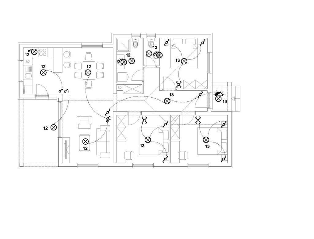
ELEKTRO PROJEKT
Elektroprojekt slabe i jake struje zgrade je dokument koji sadrži sve potrebne informacije o električnom sustavu u zgradi.

ETAŽIRANJE
Prvi korak je izlazak na teren i pregledavanje postojeće dokumentacije što je preduvjet za pokretanje postupka.
Nakon toga snima se postojeće stanje, izrađuje elaborat te ishodi potvrda od nadležnog tijela graditeljstva nakon čega je moguće napraviti upis u Zemljišne knjige.
3D VIZUALIZACIJE
Za svaki naš projekt izrađujemo 3D model u kojem se implementiraju svi detalji objekta.
Cilj je što ranije približiti Investitoru posao projektiranja kako bi se smanjila potreba za izmjenama u kasnijoj fazi projektiranja ili tijekom gradnje. Na taj način štedimo (vrijeme i novac) kako za sebe tako i za Investitora.

Nazovite nas i dogovorite konzultacije
Kvalitetna ponuda se može izraditi tek nakon uvodnog razgovora, koji će dopuniti i doraditi početnu ideju, te proširiti pogled na posao koji predstoji. Kako bi arhitekt mogao dati ponudu, potrebno je imati dovoljno informacija o projektu i klijentovim potrebama i ciljevima. Uvodni razgovor omogućava arhitektu da dobije te informacije i da na temelju njih oblikuje projektni zadatak. Samo tada može dati ponudu koja će odgovarati klijentovim potrebama i ciljevima.